- electric sauna heater
- adjustable legs
CLIFF electric sauna heater
Electric Sauna Heaters
- Environmentally conscious design
- Mild and long-lasting steam
- Control with mobile app
CLIFF electric sauna heater has a stunning natural stone surface that reflects the nature of Nordic cliffs. But what sets this sauna heater apart is not only its eye-catching appearance but also its efficient and environmentally conscious design. The body of the heater is made from cutouts of a stainless steel sheet created during the production of STEEL electric heaters, which eliminates metal waste and ensures full use of all material.
The heater has small safety distances and a slim shape, making it suitable for smaller sauna rooms. The internal air tunnel accelerates heating by 25% and extends the life of the heating elements. With a large amount of stones, the CLIFF heater provides mild and long-lasting steam, ensuring a relaxing sauna experience. In 2021 the CLIFF heater won the RedDot Award for product design.
We strongly recommend including a safety railing in your sauna—either a custom design from your builder or our HUUM safety railing—for enhanced safety and comfort.
Specifications
Models
Heater
- Power rating 6 kW
- Steam room min 5 m³
- Steam room max 9 m³
- Holding capacity of sauna rocks 75 kg
- Weight 16 kg
- Height 975 mm
- Width 270 mm
- Depth 270 mm
Connection
- Fuse 10 A
- Supply voltage, 3-phase 3/N~400V
- Power cable (N x mm²) 5 x 2.5
230V 1N connection is analogous to a 3-phase connection. Division of heating circuits must precede the circuit breaker.
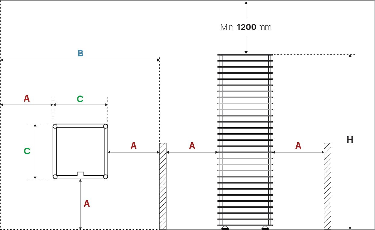
Safety distances
- A 60 mm
- B 390 mm
- C 270 mm
- H 975 mm

Heater
- Power rating 9 kW
- Steam room min 8 m³
- Steam room max 13 m³
- Holding capacity of sauna rocks 75 kg
- Weight 16 kg
- Height 975 mm
- Width 270 mm
- Depth 270 mm
Connection
- Fuse 16 A
- Supply voltage, 3-phase 3/N~400V
- Power cable (N x mm²) 5 x 2.5
230V 1N connection is analogous to a 3-phase connection. Division of heating circuits must precede the circuit breaker.
Safety distances
- A 240 mm
- B 750 mm
- C 270 mm
- H 975 mm

Heater
- Power rating 10,5 kW
- Steam room min 10 m³
- Steam room max 16 m³
- Holding capacity of sauna rocks 75 kg
- Weight 17 kg
- Height 975 mm
- Width 270 mm
- Depth 270 mm
Connection
- Fuse 16 A
- Supply voltage, 3-phase 3/N~400V
- Power cable (N x mm²) 5 x 2.5
230V 1N connection is analogous to a 3-phase connection. Division of heating circuits must precede the circuit breaker.
Safety distances
- A 240 mm
- B 750 mm
- C 270 mm
- H 975 mm

The set includes
Heater additionally needs
- UKU sauna control system
- 75 kg of sauna stones with a diameter of 3–5 cm
- Heat-resistant power cable
Design options
- You can choose a control panel that suits the interior design of your sauna: GLASS, CLASSIC, or WOOD
- The UKU control system set already includes a black plastic control panel CLASSIC Black.
- The safety railing complements the design and adds safety.
- As a design option, CLIFF electric sauna heater can be embedded into the sauna bench.
- When the heater is embedded, at least 550 mm of the heater should protrude from the sauna bench surface.
- Use the embedding flange of the CLIFF/STEEL electric sauna heater to cover the cut rims of the opening.
Resources
-
HUUM CLIFF Manual
3.18 MB -
HUUM CLIFF DWG
0.07 MB -
HUUM CLIFF OBJ
0.74 MB -
HUUM CLIFF SKP
137.28 MB -
HUUM CLIFF IFC
26.62 MB -
HUUM CLIFF 3DS
17.73 MB
-
RedDot Winner 2021
-
European Product Design Award Winner 2023

Sauna heater design that has received the Red Dot award
The name and design of the CLIFF electric sauna heater stem from Nordic cliffs. The slim shape of the sauna heater and exterior surfaces that expose dozens of natural sauna stones ensure that it’s an eye-catching element in the wooden interior of the steam room.
CLIFF sauna heater integrates all the vital features of a modern home sauna: compact shape, well-planned construction and gentle copious steam that resembles traditional wood-fired saunas. 2021. CLIFF sauna heater received the internationally reputable Red Dot product design award in 2021.

Learn more:
Products of HUUM that have won the Red Dot award

CLIFF and STEEL sauna heaters that have minimized the ecological footprint
CLIFF electric sauna heaters form an inseparable pair with STEEL electric sauna heaters. One could not exist without the other. These two sauna heaters are produced from the same stainless steel sheet. The fins of CLIFF sauna heaters are made from the cutouts of STEEL sauna heaters, which ensures that all the material is utilized and there is no residual waste.
Our mission is to find measures to ensure sustainable production with the smallest environmental footprint, so that we can hand nature in its current beauty down to future generations.
Learn more:
Craftmanship of HUUM sauna heaters
OF SAUNA